Наш офис Могилёв, проспект Мира, 20, подъезд 2
0
Телефоны

3 комнатная квартира

169 059.15 BYN
58 500$ 3 415.34 BYN/м2 1 181.82$/м2

 

В продаже светлая и уютная 3-комнатная квартира!

❗️ Квартира расположена на 1 этаже 5-этажного панельного дома 1973 года постройки.

❗️ Выполнен качественный капитальный ремонт:

окна ПВХ

новые межкомнатные двери

металлическая входная дверь

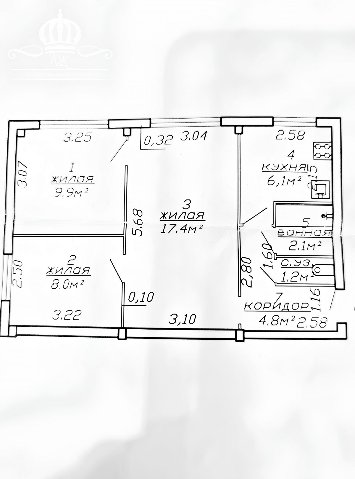
❗️ Площадь: общая — 49.5 м², жилая — 35.3 м², кухня — 6.1 м².

Раздельный санузел, планировка удобная и функциональная.

❗️ В шаговой доступности — школа, детский сад, магазины, остановка общественного транспорта.

Хитрикова Светлана Валерьевна
Хитрикова Светлана Валерьевна
Учредитель Риэлтер +375 (44) 551-40-55
Пн-Пт 10:00–19:00
Обед 13:00-14:00
Сб, Вс.: Выходной
Область
Могилёвская область
Район области
Могилёвский
Кол-во комнат квартиры
3
Площадь(О/Ж/К)
49.50/35.30/6.10
Этаж
1/5
Год постройки
1973
Материалы дома
Панель
Ремонт
Евро
Балконы
Балкон: нет
Сан. узел (кол-во)
Раздельный: да
Высота потолка
от 2.5
Торг
Есть
Похожие предложения
Image
квартира 1 комнатная квартира Могилёв, Улица Тимирязевская, 32
Комнат 1
Площадь (О/Ж/К) 35.60/19.50/7.40
Этаж/этажей 3/4
Год постройки 0
125 710.65 BYN
43500 $
Подробнее
Image
квартира 1 комнатная квартира Могилёв, Улица Симонова, 43
Комнат 1
Площадь (О/Ж/К) 37.00/17.00/7.50
Этаж/этажей 5/5
Год постройки 1975
104 325.39 BYN
36100 $
Подробнее
Image
квартира 2 комнатная квартира Могилёв, Переулок Гоголя, 37
Комнат 2
Площадь (О/Ж/К) 46.00/28.00/8.00
Этаж/этажей 2/5
Год постройки 1975
102 591.45 BYN
35500 $
Подробнее
call Позвони сейчас
Мы будем на связи с 10.00